Tel: 0773.48.80.79
viale XXIV Maggio 72 - 04100 Latina (LT)
Email: info@bluimmobiliarelatina.it

Villa a schiera in Q4

Codice: 127V

🏡 Porzione centrale di villa a schiera con giardino fronte e retro

Nel quartiere “Q4”, in tranquillo contesto residenziale, proponiamo in vendita una porzione centrale di villa a schiera terra-cielo, caratterizzata da ampie metrature e spazi esterni su entrambi i lati, ideale per chi cerca comfort e indipendenza.

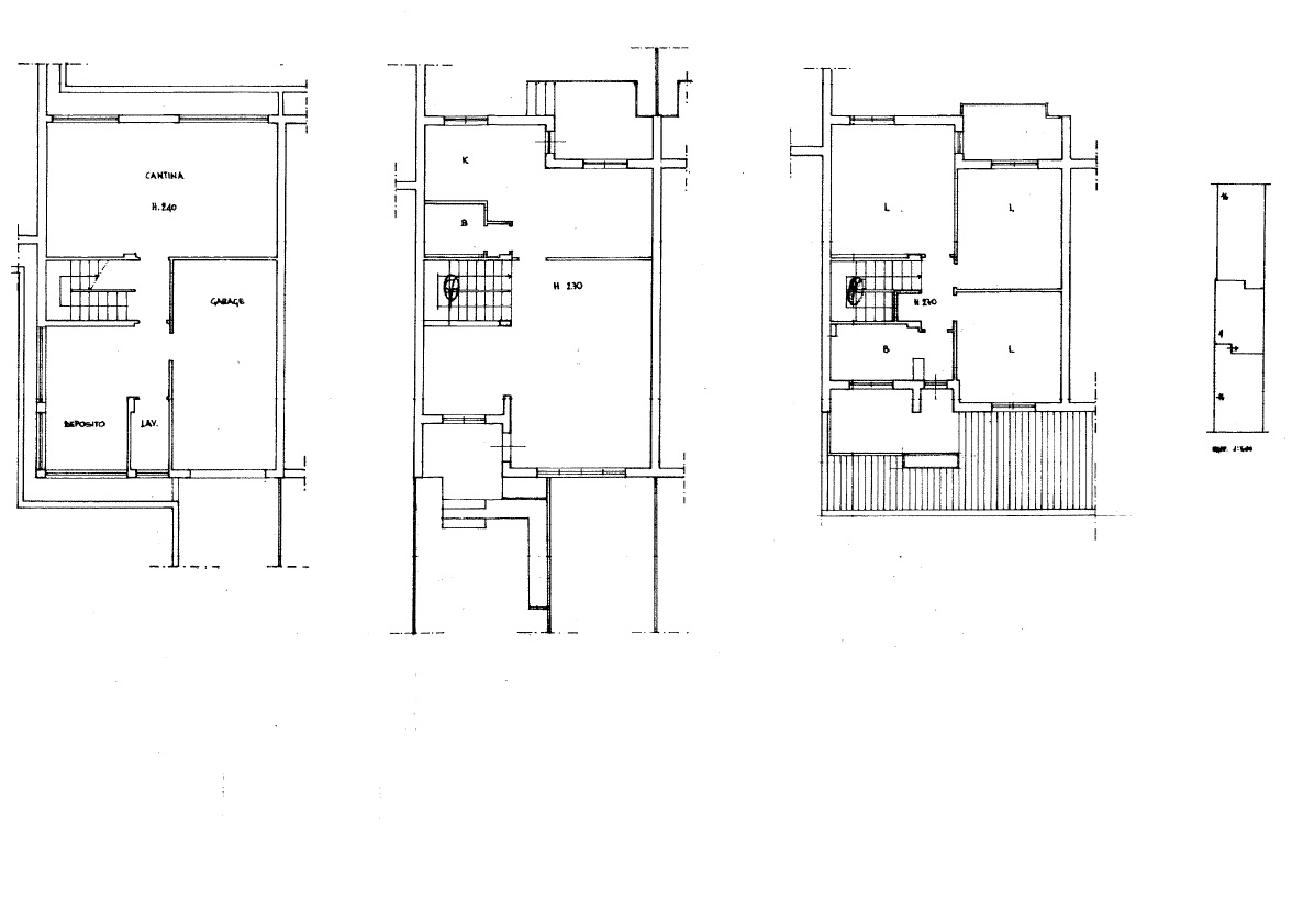
La proprietà si sviluppa su due livelli abitativi oltre al piano seminterrato, per una superficie catastale complessiva di circa 237 mq.

🔹 Piano terra rialzato: accogliente e luminosa zona giorno composta da ampia sala, bagno di servizio e comoda cucina abitabile con accesso diretto al terrazzino che conduce al giardino posteriore, perfetto per momenti di relax all’aperto.

🔹 Piano primo: la zona notte offre tre spaziose camere da letto, un ampio bagno e due balconi, che donano luminosità e ariosità agli ambienti.

🔹 Piano seminterrato: completano la proprietà un accogliente rustico, zona lavanderia, deposito e un ampio garage con accesso diretto all’abitazione.

L’immobile si distingue per l’ottima distribuzione degli spazi, la doppia esposizione e la presenza di un giardino sia frontale che posteriore, che garantisce un’ottima vivibilità.

Soluzione ideale per famiglie che desiderano una casa spaziosa, funzionale e immersa nella tranquillità, senza rinunciare alla vicinanza ai principali servizi.

📏 Superficie catastale complessiva: 237 mq
🌳 Giardino privato fronte/retro
🚗 Ampio garage
🛏️ 3 camere da letto | 2 bagni | rustico | cantina | lavanderia

Prezzo: € 310.000,00
Contratto: Vendita
Categoria: Villa a schiera
Città: Latina
Zona: Latina Q4
Balcone: si
Box: si
Camere: 3
Giardino: si
Mq: 237 catastali