Tel: 0773.48.80.79
viale XXIV Maggio 72 - 04100 Latina (LT)
Email: info@bluimmobiliarelatina.it

Locale commerciale zona centrale

Codice: 108C

Se stai cercando uno spazio dallo stile industrial, abbiamo l’opportunità perfetta per te.

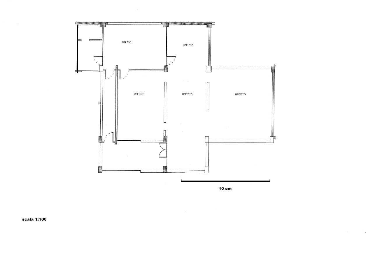
Bellissimo, luminoso, 270 mq circa, situato al piano terra, all’interno di una piazzetta coperta, è la soluzione ideale per uffici, attività commerciali, laboratori medici, open space.

In una posizione centrale, servita dalle principali vie di accesso, inserita in zona dotata di molti ristoranti e negozi, parcheggi, questo spazio è disponibile per l’affitto.

Il locale offre:

  • ampia sala d’attesa;

  • spazi separati ideali per riunioni;

  • ampio spazio aperto coperto, area relax, zona pausa pranzo;

  • comodo bagno con servizi igienici

Tutto lo spazio può essere utilizzato sia come un unico ambiente, sia con stanze separate da pareti divisorie.

Canone mensile di affitto: 2.000,00 escluso condominio

Prezzo: € 2.000,00
Contratto: Affitto
Categoria: Locale commerciale
Città: Latina
Zona: Latina Centro
Mq: 270 c.a.
Posto Auto: coperto