Tel: 0773.48.80.79
viale XXIV Maggio 72 - 04100 Latina (LT)
Email: info@bluimmobiliarelatina.it

Villa a schiera in Q4

Codice: 126V

🏡 Villa a Schiera Centrale in Zona Q4 – Latina
📐 180 mq catastali | Giardino frontale 200 mq c.a. | Giardino posteriore 130 mq c.a.

✨ In una delle zone più richieste di Latina, proponiamo in vendita una splendida villa a schiera centrale, ideale per chi cerca spazi ampi, comfort moderni e due giardini privati perfetti per momenti di relax e convivialità.

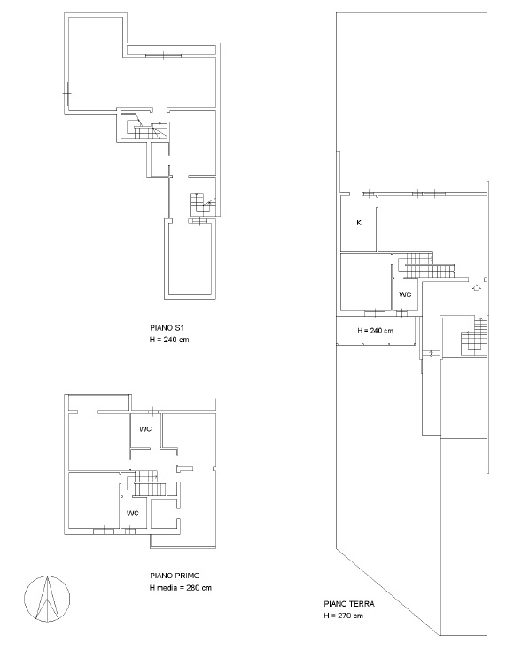
La villa si sviluppa su più livelli, offrendo ambienti funzionali e ben distribuiti:

  • Piano Terra: elegante e luminoso soggiorno con accesso al giardino, cucina abitabile separata.

  • Tra Piano Terra e Piano Interrato: studio e bagno di servizio.

  • Tra Piano Terra e Piano Primo: ampia camera e bagno.

  • Piano Primo: due camere, bagno e terrazzo con comodo locale lavanderia.

  • Piano Interrato: grande rustico con secondo locale lavanderia, cantina e deposito di circa 15 mq.

🔋 Efficienza e risparmio energetico
L’immobile è dotato di impianto fotovoltaico con accumulatore e pannello solare termico collegato a boiler per l’acqua calda, garantendo consumi ridotti e attenzione all’ambiente.

🏠 Dettagli che fanno la differenza
Copertura a tetto e finiture esterne in misto cortina-muratura, che conferiscono eleganza e solidità.

📍 Zona Q4 – Latina: quartiere residenziale tranquillo, servito e ben collegato, perfetto per famiglie.

💡 Prezzo Euro 350.000,00

Info in agenzia – Contattaci per scoprire tutti i dettagli e prenotare la tua visita!

Prezzo: € 350.000,00
Contratto: Vendita
Categoria: Villa a schiera
Città: Latina
Zona: Latina Q4
Balcone: si
Camere: 4
Giardino: 350 mq circa
Mq: 180
Posto Auto: doppio coperto
Terrazzo: si