Tel: 0773.48.80.79
viale XXIV Maggio 72 - 04100 Latina (LT)
Email: info@bluimmobiliarelatina.it

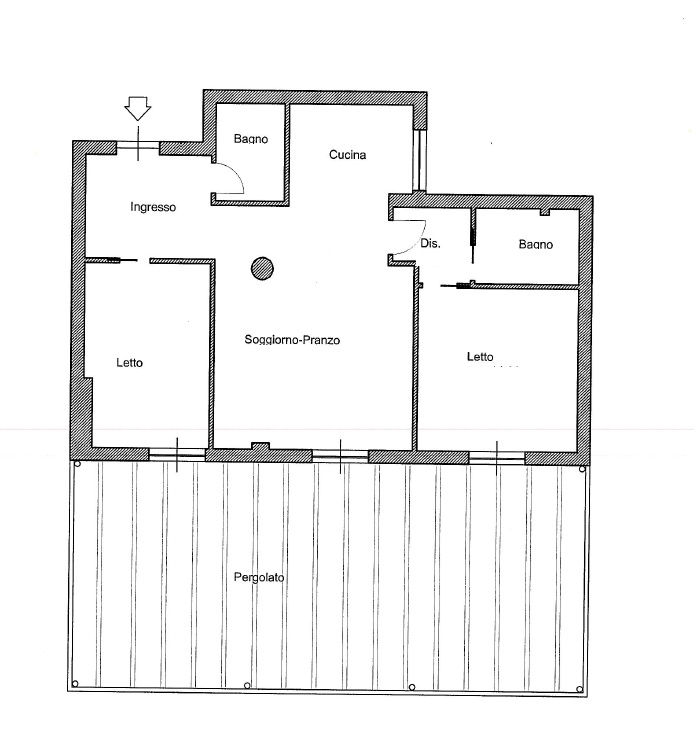
Appartamento in via Manzoni

Codice: 647AP

Vendesi in via Manzoni, nella zona EST della città, un appartamento di 90 mq catastali interni oltre un terrazzo pergolato di 60 mq circa, situato al piano terra rialzato di un tranquillo stabile con ascensore. Questo immobile è composto da sei vani ben distribuiti tra cui due camere da letto e un soggiorno pranzo con la cucina a vista  che offre un ambiente accogliente e versatile con l'uscita sul terrazzo pergolato. L'appartamento è dotato di due bagni di cui uno con vasca. Completano la proprietà un posto auto coperto di proprietà in box comune e una cantina. Gli appartamenti in questa zona sono molto ricercati, grazie alla vicinanza ai principali servizi e alle comodità del centro città.

Prezzo: € 230.000,00
Contratto: Vendita
Categoria: Appartamento
Città: Latina
Zona: Latina EST
Camere: 2
Giardino: condominiale
Mq: 90
Posto Auto: coperto
Terrazzo: 60 mq